 |
| Q41F46手动衬氟球阀 |
一、手动衬氟球阀 产品概述
上海江控阀门有限公司的手动衬氟球阀采用氟塑料作为球阀的内衬,并配之以新型的带杆球体结构,再加上其独特的弹性唇式密封座结构,使其具有普通球阀的各项优点,能在大压差和较大的温差变化范围内具有高密封性能和低操作扭矩。手动衬氟球阀,耐腐蚀球阀可作开关或调节之用,手动衬氟球阀适用于各种工业管道中液体和气体的输送(包括蒸气),在各种酸、碱、盐类等强腐蚀性介质中均能很好地工作。全通径阀门提供晨大的流量,并可用于扫线清洗或隔离输送的管道。
二、手动衬氟球阀 产品特点
手动衬氟球阀基本系列为Q41F46型,除具有的流体阻力小,启闭速度快,结构简单外,还有以下优点:
(1)采用FEP衬里层的球阀,具有极高的化学稳定性,可以适用除“熔融碱金属和元素氟”,以外其它任何强腐蚀性质;
(2)采用全通径、浮动球结构,阀门可在整个压力范围内进行无泄漏关闭,更便于管路系统的通球扫线和管路维护;
(3)启闭件球件与阀杆铸(锻)为一体,杜绝了由于压力变化引起阀杆冲出承压件内的可能性,从根本上保证了工程中的使用安全性;
(4)结构紧凑合理,阀体内腔空间最小,减小了介质滞留,另外,特殊的模压工艺,使密封面致密度良好,加之人字环形PTFE填料组合,使阀门达到零泄漏;
(5)两段、三段式构可适应各种不同要求的管路系统和工况条件,其中三片球阀允许主阀体与两侧阀体分离,可实现在线快速更换、维修。
三、手动衬氟球阀 应用标准
| 设计标准 |
GB12237 |
| 结构长度 |
GB12221 |
| 法兰标准 |
JB/T 79-94、GB/T 9113.1-26 |
| 检验试验 |
JB/T9092-99 |
| 驱动方式 |
手动、电动、气动、蜗轮 |
四、手动衬氟球阀 零件材料
| 零件名称 |
灰铸铁 |
铸钢 |
不锈钢 |
超低碳不锈钢 |
| Z |
C |
P |
R |
PL |
RL |
| 阀体、阀盖 |
HT250 |
WCB |
CF8 |
CF8M |
CF3 |
CF3M |
| 球体 |
WCB |
WCB |
CF8 |
CF8M |
CF3 |
CF3M |
| 衬里层/阀座 |
FEP(F46) PCTFE(F3)PFA(可洛性聚四氟乙烯) |
| 填料压盖 |
HT250 |
WCB |
CF8 |
CF8M |
CF3 |
CF3M |
| 填料 |
PTFE(F4) 聚四氟乙烯 PTFE(F4)聚四氟乙烯 |
| 螺栓 |
35 |
35 |
1Cr17Ni2 |
1Cr17Ni2 |
1Cr18Ni9 |
1Cr18Ni9 |
| 螺母 |
45 |
45 |
0Cr18Ni9 |
0Cr18Ni9 |
0Cr18Ni9 |
0Cr18Ni9 |
| 手柄 |
WCC |
WCC |
WCC |
WCC |
WCC |
WCC |
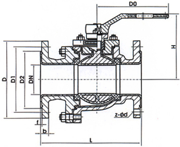
五、手动衬氟球阀 外形尺寸图
 |
| Q41F46手动衬氟球阀 结构尺寸图 |
六、手动衬氟球阀 连接尺寸
| 公称通径 |
标准值 |
参考值 |
| DN(mm) |
NPS(inch) |
L |
D |
D1 |
D2 |
f |
b |
Z-Φd |
Do(手柄) |
Do(蜗轮) |
H |
WT(Kg) |
| PN1.0MPa |
| 15 |
1/2 |
140 |
95 |
65 |
45 |
2 |
14 |
4-Φ14 |
120 |
|
80 |
2.5 |
| 20 |
3/4 |
140 |
105 |
75 |
55 |
2 |
16 |
4-Φ14 |
140 |
|
90 |
3 |
| 25 |
1 |
150 |
115 |
85 |
65 |
2 |
16 |
4-Φ14 |
160 |
|
100 |
4.5 |
| 32 |
11/4 |
165 |
135 |
100 |
78 |
2 |
18 |
4-Φ14 |
160 |
|
110 |
5.7 |
| 40 |
11/2 |
180 |
145 |
110 |
85 |
2 |
18 |
4-Φ14 |
200 |
|
120 |
7 |
| 50 |
2 |
200 |
160 |
125 |
100 |
3 |
20 |
4-Φ14 |
250 |
|
135 |
9.5 |
| 65 |
11/2 |
220 |
180 |
145 |
120 |
3 |
20 |
4-Φ14 |
300 |
|
145 |
15 |
| 80 |
3 |
250 |
195 |
160 |
135 |
3 |
22 |
4-Φ14 |
350 |
|
185 |
19 |
| 100 |
4 |
280 |
215 |
180 |
155 |
3 |
22 |
8-Φ18 |
400 |
|
95 |
33 |
| 125 |
5 |
320 |
245 |
210 |
185 |
3 |
24 |
8-Φ18 |
500 |
|
210 |
58 |
| 150 |
6 |
360 |
280 |
240 |
210 |
3 |
24 |
8-Φ23 |
|
200 |
450 |
93 |
| 200 |
8 |
457 |
335 |
295 |
265 |
3 |
26 |
8-Φ23 |
|
240 |
490 |
155 |
| 250 |
10 |
533 |
390 |
350 |
320 |
3 |
28 |
12-Φ23 |
|
240 |
550 |
210 |
七、手动衬氟球阀 产品选型
选型时请填写《规格书》或注明以下内容:
1、若订货前未选定型号,请向我们提供使用参数:1.公称通径,2.流体性质(包括公称压力、温度、粘度或酸碱性),3.阀体、阀芯材料。
2、若已经由设计单位选定我公司的产品型号,请按型号直接向我司经营部订购;
3、当使用的场合非常重要或管路比较复杂时,请您尽量提供设计图纸和详细参数,由我们的专家为您审核把关。
相关名称:手动衬氟球阀,Q41F46衬四氟球阀,耐腐蚀球阀